探秘成都「兴唐新川雅境」,了解售房部联系电话、周边完备配套、真实楼盘口碑以及最新优惠活动详情
扫描到手机,新闻随时看
扫一扫,用手机看文章
更加方便分享给朋友
在当下的楼市中,“卷”字成了最贴切的形容。如今的楼盘竞争,从户型、景观、外立面到装修,各个方面都要比拼,甚至有些楼盘还开始打起了价格战。然而,高新区域因其高价值属性,定位为高端改善板块。对于改善型客户而言,他们最为看重的还是居住品质,只有那些真正从客户需求出发、品质过硬的产品,才能在激烈的市场竞争中崭露头角。今天,就来给大家深度剖析一下位于高新南的宝藏楼盘——【新川雅境】 。【新川雅境】的开发商并未随波逐流陷入价格战的漩涡。他们深知,卷价格犹如掉进无底黑洞,是一把伤人伤己的“三刃剑”:既损害客户利益,自身也会受伤,还会拉低整个区域的价值。若一味降低价格压缩利润空间,难免会在建筑质量上偷工减料,届时接房就变成“闹心房”,交房也会成为一场闹剧。所以,自今年5月起,开发商就做出决策:不选这把“亲者痛仇者快”的价格战工具,而是全力在品质上做文章。基于部分业主的建议,并结合项目自身实际情况,开发商耗时3个月,从5月开始对项目进行全面升级。此次升级涉及大区景观、公共区域、地下室以及户型布局等多个方面,旨在打造高品质居住体验!【新川雅境】有着十分出色的周边配套:其一,配套成熟,充满“老成都”惬意烟火气。项目紧邻3号邻里中心、时光里小吃街、新川中心等已经成型的配套,满足日常生活所需。其二,教育资源优质且丰富。蒙小、教科院附幼、附小、附中、金苹果锦城一中等约20所学校汇聚于此,孩子的全龄段教育有了保障。其三,交通便捷。临近地铁6号线新通大道站,出行轻松畅通。其四,自然环境优越。坐拥双滨河湿地,在高新区域十分难得,同时紧邻新怡公园,前往新川之心公园也极为便捷,尽情畅享鲜氧绿意生活。
【新川雅境】还拥有诸多楼盘优势。首先,它为准现房,交房时间近,大大缩短了购房者的等待周期。购买后不久即可装修入住,快速满足住房需求,不仅节省了时间成本,还能省去租房费用,切实减少了购房成本。其次,作为准现房,购房前可实地考察。社区大环境、楼间距、采光情况都直观呈现,户型中的细微瑕疵以及室内外空间布局也一目了然。与当下很多展示与交付不一致的楼盘相比,优势尽显。
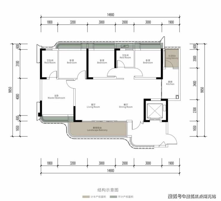
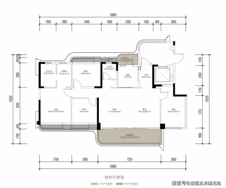
户型方面更是可圈可点。约132㎡的四房双卫环幕式大平层,秉持实用主义理念;约143㎡的四房双卫瞰景大平层,则能带来无界视野交融的体验。
此外,【新川雅境】引入了龙湖智创生活,为业主精心打造品质物业服务。项目开发商兴唐地产,虽在成都房地产界算不上头部,但却做出了令人钦佩之举:放缓开盘节奏,通过实景开放的方式将产品升级成果进行展示,告别常规预售下的“卖家秀”,让购房者所见即所得,有效避开购房陷阱,在很大程度上降低了后期交付风险。【新川雅境】售楼处热线 028 84720058(已认证)【新川雅境】项目经理热线 13281850333(微信同号)温馨提示:为了给您提供更优质的接待服务,请提前致电售楼处预约看房!【有免费看房车接送服务,如需预约,请致电售楼处】
声明:本文由入驻焦点开放平台的作者撰写,除焦点官方账号外,观点仅代表作者本人,不代表焦点立场。


