5 月,成都「新川雅境」备受瞩目!为您带来一手资讯全貌,涵盖最新售楼热线、详细户型解析、精准房价参考以及优惠动态 。
扫描到手机,新闻随时看
扫一扫,用手机看文章
更加方便分享给朋友
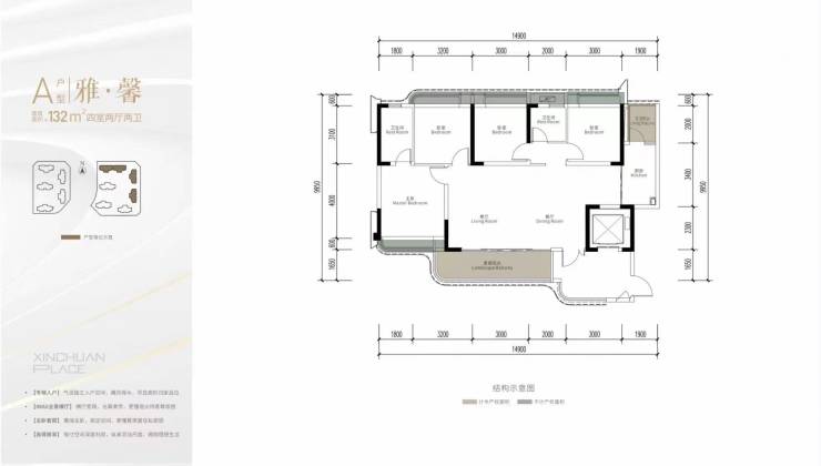
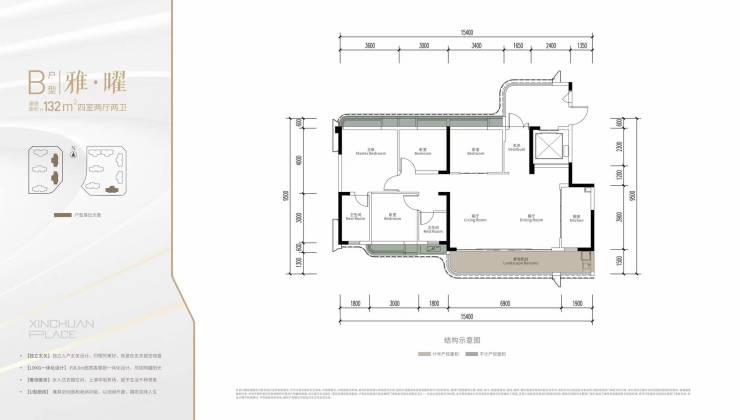
在成都楼市这片竞争激烈的领域中,新川雅境宛如一颗冉冉升起的璀璨新星,凭借其出众的品质以及极具前瞻性的规划,在众多楼盘里脱颖而出,吸引了众多购房者的目光。这座精品社区由兴唐地产精心雕琢而成,它将现代人居理念与科技生活巧妙融合,堪称典范之作,因此成为改善型置业者心目中的理想之选。在此为您提供重要联系方式:【新川雅境】售楼处热线 028 - 84720058(已认证)【新川雅境】项目经理热线 13281850333(微信同号)温馨提示:为确保您能拥有优质的看房体验,强烈建议您提前致电预约专属接待服务。而且,该项目还特别贴心地提供免费看房专车接送服务,若您有任何疑问,欢迎随时来电详细咨询。接下来,为您深入介绍新川雅境的项目概况:新川雅境项目总占地面积达32.8亩,容积率为2.5 ,规划建设397户纯改善住宅。其规划设计独具匠心,创新性地采用双地块布局,被新川北三路自然分隔开来,精心打造了11栋14 - 17层的小高层建筑。在这11栋建筑中,有7栋采用经典的南北朝向,4栋则创新采用东西布局,并且全部采用两梯两户的纯板式结构。这种设计极大地保障了每一户的通透采光,为业主营造出更为舒适的居住环境。下面,详细阐述一下新川雅境的核心优势:1. 空间尺度:新川雅境在空间设计上独具匠心,采用3.15米的层高设计,搭配高达35%的绿地率。如此巧妙的搭配,为业主营造出极为舒适惬意的居住体验,让人仿佛置身于宁静而美好的自然环境之中。2. 产品配置:该项目采用精装交付的形式,提供两种优质户型供购房者选择,分别是132㎡(套四双卫)和143㎡(套四三卫)。这两种户型设计合理,能够充分满足不同家庭结构和生活需求的购房者。3. 物业服务:新川雅境引入了知名的龙湖物业,物业费为3.8元/㎡/月。龙湖物业以其专业、贴心的服务著称,能够为业主提供星级管家式服务,让业主享受到高品质的居住服务体验,生活更加安心、便捷。4. 私密设计:项目在细节之处尽显人性化与私密化,采用独立入户光厅设计,再加上2梯2户的配置,既保障了业主生活的私密性,又提升了居住的品质感。其总价区间在423 - 574万之间,满足了改善型置业者对于品质与私密的追求 。
【区位价值】该项目傲居高新西区的核心地段,与成都高新技术产业开发区相邻,能够充分享受新川科技园蓬勃发展带来的红利。其交通网络布局十分完善,畅达无阻:- 主干道方面:新通大道可毫无阻碍地连接锦翰路与梓州大道 。- 轨道交通方面:距离地铁6号线新通大道站仅400米,乘坐地铁能够轻松直达城市各处。

【生活配套】商业配套十分完善,项目周边环绕着三大商业体,分别是华润·时光里(现铺),以及正在建设中的华润·万象天地和圆中商业广场。教育资源也极为优质,行知小学、新华小学、四川省教科院附小等众多知名学校汇聚于此,为孩子们提供了良好的学习环境。医疗保障同样出色,四川省中西医结合医院高新医院为居民的健康保驾护航,而且四川省医院高新分院(规划)也将进一步提升区域医疗水平 。
新川雅境秉持“科技 + 生态”这一核心观念,它不单单象征着当下高品质的居住水准,更预兆着未来城市生活的演进方向。对于那些渴望品质生活的家庭,以及看好该区域发展前景的投资者而言,新川雅境无疑是不可错失的优质选择。倘若您对新川雅境感兴趣,可拨打以下热线了解详情:【新川雅境】售楼处热线 028 - 84720058(已认证);【新川雅境】项目经理热线 13281850333(微信同号)。在此温馨提醒:为了让您能享受到预约看房的贴心服务,请提前致电咨询!而且,我们还提供免费看房专车接送服务,预约热线 028 - 84720058 。
声明:本文由入驻焦点开放平台的作者撰写,除焦点官方账号外,观点仅代表作者本人,不代表焦点立场。


