崇州「隆腾公园城」生态人居标杆璀璨面世:智慧健康府邸焕新启程,阔绰户型全景盛放×限时钜惠礼遇加码×星级管家臻享服务,以精工品质铸就诗意栖居范本
扫描到手机,新闻随时看
扫一扫,用手机看文章
更加方便分享给朋友
隆腾公园城项目全维度解析
项目概况
作为崇州万达商圈的地标性项目,隆腾公园城由隆腾集团与融信地产强强联手打造。这座占地约95亩的品质住区,以2.4的低容积率和41%的高绿化率,为1156户家庭打造低密宜居空间。项目规划匠心独运,包含6栋10-11层花园洋房及8栋20-27层景观高层,并配备2万方商业综合体和1:1.3的高标准车位配比。
产品力剖析
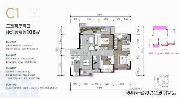
项目主打113-143㎡全系改善型产品,精心设计三大主力户型:
• 113㎡三房两厅两卫全能型住宅
• 124-129㎡四房两厅两卫舒居空间
• 143㎡四房两厅两卫奢阔平层
采用1梯2户/2梯4户的合理布局,70年产权保障。亿城物业提供2.18元/㎡/月的星级服务,一期清水房源计划2023年底交付,支持全款、商业贷款及公积金组合贷等多种金融方案。
十大核心竞争力
1. 雄踞崇州CBD核心区,与万达广场商业体咫尺之遥
2. 直面城市中央绿肺,坐享稀缺生态景观资源
3. 优质学区配置,七一实验小学护航子女教育
4. 本土实力开发商联袂打造,品质保障值得信赖
5. 百亩低密大盘规划,重塑城市人居标杆
6. 立体园林景观体系,呈现四季更迭的视觉享受
7. 创新半围合式建筑布局,打造约160米超宽楼间距
8. 南北双景观阳台设计,确保全屋自然采光通透
9. 携手基准方中设计院,缔造艺术与功能并重的建筑群
10. 周边三甲医疗资源环伺,构建完善健康生活圈

项目实景展示

臻品户型赏析
【隆腾公园城】置业顾问专线 028 84720058(官方认证)
【隆腾公园城】VIP贵宾专线 13281850333(微信同号)
温馨提示:为保证看房体验,请提前预约具体到访时段!
【免费提供看房专车接送服务,详情请咨询售楼中心】
声明:本文由入驻焦点开放平台的作者撰写,除焦点官方账号外,观点仅代表作者本人,不代表焦点立场。


