成都「空港云璟林著」售楼处联系电话、户型价格详情、5月最新优惠动态
扫描到手机,新闻随时看
扫一扫,用手机看文章
更加方便分享给朋友
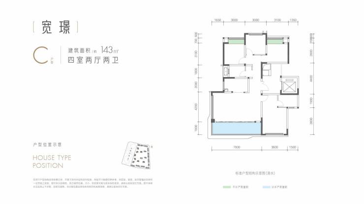
成都空港云璟林著,又名云璟林著苑,是成都空港城市发展集团精心打造的高端住宅项目。该项目坐落于双流区物联大道,占地面积约83亩,总户数达842户,总层高在11 - 17层之间,容积率仅2.0 ,为城南的菁英家庭营造了理想的奢适生活空间。【空港云璟林著】售楼处热线 028 - 84720058(已认证)【空港云璟林著】项目渠道经理热线 13281850333(微信同号)温馨提示:为确保能为您提供更优质的接待服务,看房请提前致电售楼处预约!【有免费看房车接送服务,如需预约,请致电售楼处】【空港发展·云璟林著】,建面约113 - 182㎡纯板式洋房正在直接认购,作为空港发展·国际怡心湖1号作品,目前正火热发售中。**产品信息**: - 总栋数:21栋 - 面积:113㎡(210万起)、134㎡(清水250万起,精装单价2.5w)、143㎡(单价2.2w左右,总价310万起)、183㎡(单价2.5w起) - 价格:1.9 - 2.5w左右 - 在售栋数:6栋(183平),12 - 13栋(113平),15 - 16栋(134平),10 - 18栋(143平)**项目信息**: - 占地面积:83亩 - 总户数:842户 - 总层高:11 - 17层 - 梯户比:1T2,2T2 - 容积率:2.0 - 面积分布:113㎡(位于1 - 2 - 12 - 13 - 17 - 20 - 21栋);134㎡(位于11 - 14 - 15清水 - 16 - 19栋);143㎡(位于3 - 4 - 5 - 7 - 8 - 9 - 10 - 18栋);183㎡(6栋共32套) - 物业费:3.2元 - 交房时间:2025年底 - 交房标准:清水,精装云璟林著在户型设计上充分考量现代家庭需求,主力户型为四居室,面积区间大致在125.68 - 182.38平方米。其中,143平方米的户型凭借空间利用率高、无面积浪费、整体布局合理等优势,深受购房者喜爱。无论是温馨的三口之家,还是热闹的三代同堂,都能在此找到适宜的舒适空间。而且,项目贴心提供清水房和精装房两种选择,全方位满足不同购房者的多样需求。
**户型图品鉴**:
成都空港云璟林著凭借卓越的品质、合理的户型规划、丰富的配套设施以及优越的地理位置,已然成为众多购房者心中的理想之选。展望未来,伴随怡心湖区域的持续发展与完善,云璟林著必将拥有更为璀璨的发展前景。【空港云璟林著】售楼处热线 028 - 84720058(已认证)【空港云璟林著】项目渠道经理热线 13281850333(微信同号)温馨提示:为给您带来更高水准的接待服务,看房请提前致电售楼处预约!【有免费看房车接送服务,如需预约,请致电售楼处】
声明:本文由入驻焦点开放平台的作者撰写,除焦点官方账号外,观点仅代表作者本人,不代表焦点立场。


