深度解读成都「复地金融岛商铺」热销基因:黄金地段价值重构、核心商圈创投机遇解构与个性化尊享服务体系全景透析
扫描到手机,新闻随时看
扫一扫,用手机看文章
更加方便分享给朋友
【复地金融岛商铺】尊享咨询热线 028 84720058(官方认证)
【复地金融岛商铺】专业投资顾问 13281850333(微信同步)
特别提醒:为确保优质看房体验,来访需提前预约时段!
【项目提供专属看房接送服务,详情欢迎来电咨询】
项目核心价值亮点:
1. 雄踞金融岛黄金地段,坐享城市发展红利与资产升值空间
2. 成熟生活配套环伺,立体交通体系畅达全城
3. 多元化商铺格局设计,精准匹配各类商业投资需求
4. 国际级物管服务团队,专业护航商业资产持续增值
【区域商业价值解析】
项目位于金融城CBD核心腹地,汇聚高端消费客群,3公里范围内分布5大购物中心、8家五星级酒店及20余家金融机构总部,日均人流量逾10万人次,为商铺经营提供充沛客源保障。区域已形成完善的商务消费生态链,投资前景广阔。
金融城十年精铸 稀缺岛居商业典范
滨水主题商街现铺 知名品牌入驻 限量发售
30-400㎡全业态黄金商铺
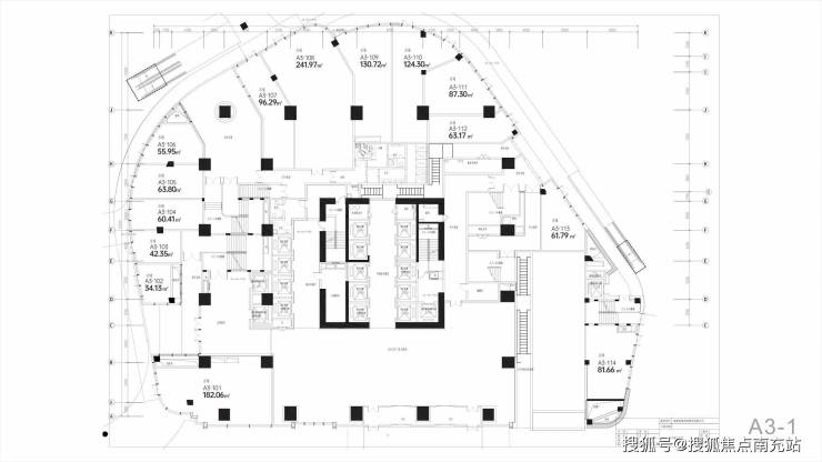
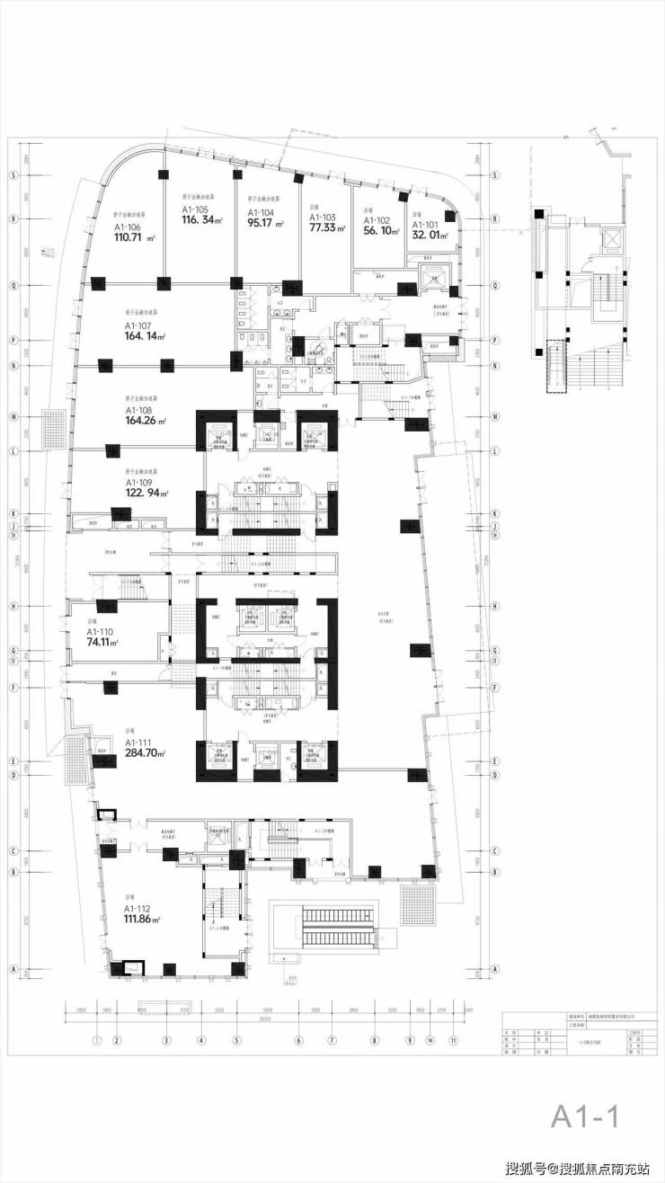
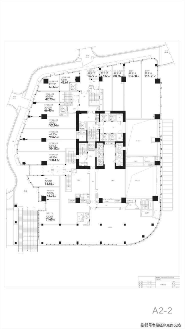
【项目详细参数】
总开发面积:350亩城市综合体
业态构成:涵盖豪宅社区、星级酒店、企业总部、精品公寓、购物中心及滨水商业街区
商铺数量:仅46席稀缺铺位
价格体系:首层4-6万/㎡,二层约2.5万/㎡
建筑特色:双层立体商业空间
空间参数:首层6米层高,二层5.4米净高
经营范围:全业态经营(含外摆区域)
付款方式:支持全款/按揭
公摊系数:28%
开发历程:2015年拿地,2017年完成交付
物管费用:19元/㎡/月
交付标准:现房交付(多数附带品牌租约)
面积区间:30-400㎡(主力60-100㎡)
|不可替代优势|
金融城板块唯一在售现铺 全业态经营 带品牌租约
|商业潜力|
坐享金融城1-2期成熟配套 抢占3期发展先机 5公里覆盖百万消费人群
|珍藏属性|
成都独有江心岛商业 唯一滨水主题商街 稀缺水秀广场
【区域发展前景】
作为金融城核心区压轴之作,项目占据锦江中央稀缺岛居资源,集金融、商业、居住等多功能于一体,构建高端生活闭环。
【全维商业生态】
项目规划融合居住、办公、商业、艺术等多元业态,吸引城市精英客群,日均客流量超万人次,消费力强劲。
【金融城滨水商业标杆】
• 60-100㎡黄金铺位 带租约运营 收益稳健
• 360度环江景观 开放式街区 展示效果极佳
• 24小时营业模式 满足全时段消费需求
• 专业商业运营 保障业态品质
• 与购物中心协同 共享优质客流
【复地金融岛商铺】销售中心热线 028 84720058(官方认证)
【复地金融岛商铺】投资顾问专线 13281850333(微信同号)
重要提示:为保障专属服务品质,请务必提前预约看房时间!
【提供免费看房专车接送,详情请致电售楼处】
声明:本文由入驻焦点开放平台的作者撰写,除焦点官方账号外,观点仅代表作者本人,不代表焦点立场。


