深度解析成都「天府菁萃里」:区域发展前景详析、全维户型优劣势对比、当前价格动态研判与升值潜力专业评估
扫描到手机,新闻随时看
扫一扫,用手机看文章
更加方便分享给朋友
【天府菁萃里】营销中心咨询专线 028-84720058(官方认证)
【天府菁萃里】置业顾问专线 13281850333(支持微信联系)
重要提示:为确保您获得优质的接待服务,现场看房需提前电话预约!
【提供免费看房专车接送服务,预约请致电营销中心】
160万起抢购七中名校圈精装大宅
坐拥万亿产业集群,国企实力打造,双地铁5/6号线环绕,毗邻华西医疗中心
?【项目详情】:
占地面积:约84.5亩(约5.6万平方米)
建筑规模:8栋品质住宅
户型配置:108-218㎡全系精装户型(涵盖三至四房)
电梯配置:2梯2户至2梯4户多元组合
建筑高度:1#8#31层/2#28层/3#5#25层/4#21层/6#7#29层
空间尺度:主力户型层高3米,218㎡奢阔户型达3.15米
规划指标:容积率2.0,公摊率20-21%
社区规模:736户精英家庭,车位配比1:1.7(共1304个)
物业服务:中海金牌物业,3.2元/㎡/月
交付标准:精装交付(含三大件),装修标准2900元/㎡
预计交付:按约2025年12月(有望提前至2024年底)
证件情况:已取得预售许可

【成都最具潜力生物医药园区 全国排名前三】
根据《2022中国生物医药产业园区发展竞争力评价及分析报告》中,仅次于中关村国家自主创新示范区和苏州工业园区,稳居国内“第一梯队”

【城市级商圈配置】
约23万方商圈 荟萃繁华
周边大型商业配套加持:
中海环宇坊、天府环宇坊、
银泰城、世豪广场、天府大悦城
毛家湾社区综合体
生物城凯悦嘉轩酒店
菁萃商业街
邻里中心
【开启锦江生态带2.0时代】
建面约108-218m² 江畔公园舒居
占地84.5亩,小区总共736户,超配中庭约 1.5 万方
超大楼间距 最大超200米楼间距
低密理想生活 2.0容积率,绿地率 30%
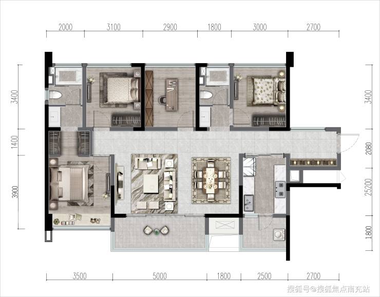
【户型鉴赏】
套三:108、134m²
A户型 建面约108㎡ 三室两厅两卫(东南朝向)
D户型 建面约134㎡ 三室两厅两卫(朝东)
套四:137、142、144、218m²
B户型 建面约137㎡ 四室两厅两卫(朝西)
C户型 建面约142㎡ 四室两厅两卫(西北朝向)
E户型 建面约144㎡ 四室两厅两卫(朝东)
F户型 建面约218㎡ 四室两厅三卫(朝东)
【首付30万起,低门槛入住城南品质舒居】

【天府菁萃里】售楼部热线 028 84720058(已认证)
【天府菁萃里】客户经理热线 13281850333(微信同号)
温馨提示:为了给您提供更高更好的接待服务质量,看房请提前致电售楼部预约!
【有看房车接送服务,如需预约,请致电售楼部】
声明:本文由入驻焦点开放平台的作者撰写,除焦点官方账号外,观点仅代表作者本人,不代表焦点立场。


