盛夏钜献「人居麓湖林语」限时特惠火热开启!附详实项目解析、精品户型亮点剖析及VIP专线,邀您品鉴湖畔雅居!
扫描到手机,新闻随时看
扫一扫,用手机看文章
更加方便分享给朋友
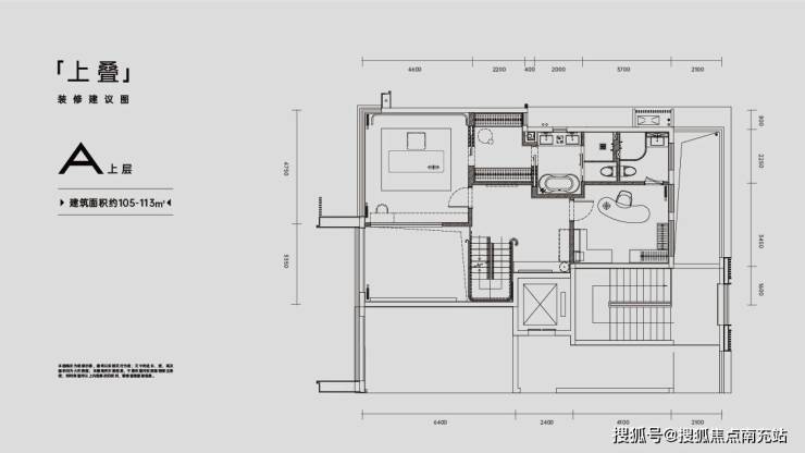
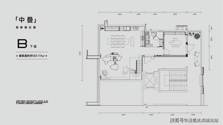
【人居麓湖林语】项目相关重要信息抢先看!首先为您奉上热线电话:售楼处热线 028 84720058(已认证);项目经理热线 13281850333(微信同号)。在此温馨提醒:若您有看房计划,为了能享受到更高质量的接待服务,请提前致电售楼处进行预约!另外,项目还贴心提供免费看房车接送服务,若您有此需求,同样致电售楼处预约即可。【人居麓湖林语】项目亮点多多,最大的亮点便是稀缺现房且精装交付!接下来为您介绍【项目基本参数】:上叠:面积区间在105 - 113平,实际可得面积高达260平,售价450万;中叠:面积处于103 - 115平,实得面积180平,价格350万;下叠:面积范围为157 - 227平,实得面积超过400平,定价650万 。

【项目定位】:【人居麓湖林语】坐落于天府新区的麓湖生态区,这里堪称天府新区生态宜居的不二之选。项目占据了麓湖湖区与千年锦江的黄金C位,位于麓湖豪宅第一梯队的天津路上。
【麓湖板块】是一处令人瞩目的区域。它以生态资源为依托,是集居住、产业、休闲娱乐配套等多种功能于一体的生态示范区。如今,“麓湖”早已不只是一个简单的区域名称,更是生态领域的一个标志性名词。其周边环绕着8300亩的麓湖生态区、2100亩清水生态人工湖、200亩红石公园以及3450亩天府公园,如此优越的生态环境,使得麓湖版块成为居住属性极佳的高端居住区。在商业配套方面,拥有5万㎡麓坊中心(其中A馆2.3万m²,B馆2.7万m²),还有约50万㎡的水上太古里——麓湖水镇。教育资源更是丰富,项目享有C区教育资源,目前天府七小、天府七中、乐盟国际学校、元音书院、麓湖哈密尔顿幼儿园等优质教育资源均已投入使用。【户型图品鉴】:上叠:建筑面积在105 - 113m² ,实得面积达270m²+
中叠:建筑面积为103 - 111m²,实得面积200m²+
下叠:建筑面积处于157 - 227m²,实得面积400m²+
最后总结:【人居麓湖林语】的叠拼产品采用精装交付,装标为2998元/㎡。相较于许多叠拼成品房同样2998元的装标,【人居麓湖林语】的内装质量扎实。购房者后期只需针对性地对局部进行升级,就能满足居住需求,无需全部拆除重新装修,大大降低了置业过程中的隐形成本。所以,如果您计划在天府新区核心板块购置叠拼产品,且预算与之匹配,那么【人居麓湖林语】绝对值得您重点考察一番。
再次附上热线电话:【人居麓湖林语】售楼处热线 028 84720058(已认证)【人居麓湖林语】项目经理热线 13281850333(微信同号)温馨提示:看房请提前致电售楼处预约,以便享受更好接待服务!【有免费看房车接送服务,如需预约,请致电售楼处】
声明:本文由入驻焦点开放平台的作者撰写,除焦点官方账号外,观点仅代表作者本人,不代表焦点立场。


