人居麓湖林语置业指南:畅销户型深度剖析、6月房价趋势预测,全方位解读楼盘核心优势与投资潜力
扫描到手机,新闻随时看
扫一扫,用手机看文章
更加方便分享给朋友
人居麓湖林语丨精装现房叠墅 稀缺席位限量发售
贵宾热线:028-84720058(官方认证)
项目总监专线:13281850333(微信同步)
作为城市核心区的标杆之作,人居麓湖林语凭借精装现房叠墅的稀缺属性,重新诠释了高端人居新范式。项目采用"拎包入住"的交付标准,所有住宅单元均配置国际顶级品牌精装系统,从德国进口卫浴到意大利奢华厨电,每个细节都诠释着非凡的生活品位。
区位交通优势
项目坐拥"三横两纵"立体交通路网,10分钟速达地铁5号线与6号线换乘枢纽。周边3公里范围内集聚多所省市级重点中小学,构建全龄段优质教育矩阵。社区内部匠心打造约8000㎡中央景观花园,将现代景观美学与生态理念完美结合,营造四季如画的居住环境。
产品设计亮点
本次推出的精装叠墅产品,建面约185-255㎡,采用创新空间布局,确保户户南北通透。上叠户型特别设计观景露台,下叠户型则配备私属庭院,为业主打造差异化的品质生活体验。社区实行严格的人车分流管理,配合24小时智能安防系统,全方位保障居住安全与私密性。
鉴于项目销售持续火爆,诚邀意向客户亲临品鉴。专业置业团队将提供VIP专属服务,深度解析产品价值体系及特惠购房政策。
核心价值剖析
作为天府新区麓湖生态城核心资产,项目雄踞天津路豪宅板块,坐享锦江千年水系与8300亩生态湖区双重资源,堪称城市生态人居典范。
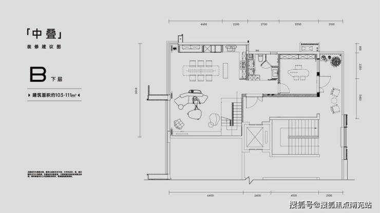
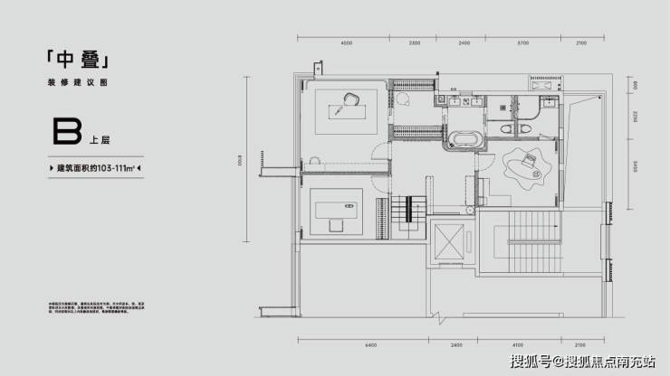
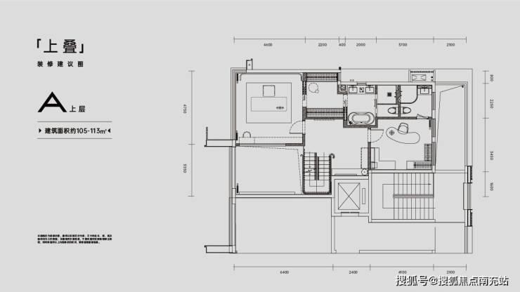
产品体系详解
▎上叠户型:建面105-113㎡丨实得270㎡丨总价450万起
▎中叠户型:建面103-115㎡丨实得200㎡丨总价350万起
▎下叠户型:建面157-227㎡丨实得400㎡+丨总价650万起

区域价值解读
麓湖生态城以2100亩人工湖为核心,整合3450亩天府公园、200亩红石公园形成生态绿廊。板块内已建成5万㎡麓坊中心商业体,50万㎡水上太古里(麓湖水镇)正在加速建设。教育配套涵盖天府七中、元音书院等知名学府,形成全龄段优质教育链。
精工品质解析
项目采用2998元/㎡精装标准,较同类产品更具竞争优势。卫浴系统选用国际顶尖品牌,厨房配备全套嵌入式高端家电,硬装品质完全满足高端居住需求,有效降低后期改造成本。
实景样板展示
上叠丨空中花园设计丨270㎡灵动空间
中叠丨双主卧套房丨200㎡功能布局
下叠丨私属花园丨400㎡阔绰尺度
专属服务说明
• 预约制接待保障服务品质
• 提供免费看房专车接送
• 专业置业顾问全程服务
售楼中心热线:028-84720058(官方认证)
项目总监专线:13281850333(微信同步)
声明:本文由入驻焦点开放平台的作者撰写,除焦点官方账号外,观点仅代表作者本人,不代表焦点立场。


