成都「御景东方」售楼处热线丨项目百科全解丨楼盘详情解析丨11月限时购房优惠丨最新成交价格及动态
扫描到手机,新闻随时看
扫一扫,用手机看文章
更加方便分享给朋友
【御景东方】售楼部电话:028 - 62444811(已认证)
【御景东方】销售经理电话:15388440405(微信同号)
温馨提示:为了提供更高更好的接待服务质量,看房请提前1小时致电预约!
御景东方——写字楼
主城成华 地铁物业
【项目配套】
项目便捷交通 出行便捷通达全城
三纵 华翰路/华实路/华盛路
两横 航天路/成宏路
地铁 17号线威灵站(建设中)约500m
公交 G99路/快速公交K16线/122路/G169路/14路/67路/87路

项目基础信息
项目地址:成华区华实路37号
开发商:重庆恒耀集团
物业类型:写字楼
公摊:18%
项目总占地:约30亩
项目总建面:约10万㎡
在售产品:B栋
总楼层:21层
单层层高:3.3米
电梯:3T1/3T2
物业费:6元/㎡/月
水费:4.5元/吨
电费:0.79-1.15/度
气费:3.78/方
整层面积段:约728—790㎡
半层面积段:约355—408㎡
交房时间:2025年12月31日
产品惠后均价:4500元/㎡
项目卖点
主城目前唯一一个有中庭花园的项目
低单价,投资门槛低,投资回报高!
不同于传统写字楼,本案水电气三通,满足生活和餐饮条件,未来将引入高端餐厅、品牌酒店、健身房、美容院等,提升生活品质。
懂办公更懂生活
打破传统写字楼压抑氛围,打造活力生活配套,留住企业,更能留住人。项目自带约4千平商业配套。
规划业态:特色餐饮(异域餐饮、主题餐饮、商务宴请)、网红餐饮、咖啡下午茶、文艺书店,茶楼、健身房、公共活动空间。
通过专业的招商运营团队进行合理规划,统一运营。
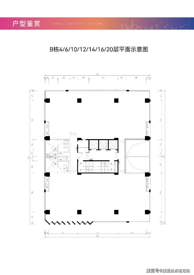
项目楼层平面示意图
【御景东方】售楼部电话:028 - 62444811(已认证)
【御景东方】销售经理电话:15388440405(微信同号)
温馨提示:为了提供更高更好的接待服务质量,看房请提前1小时致电预约!
声明:本文由入驻焦点开放平台的作者撰写,除焦点官方账号外,观点仅代表作者本人,不代表焦点立场。


