成都「俊屹中心」售楼部电话 | 网站首页 | 项目优势与不足解析 | 9月限时购房优惠政策及活动详情
扫描到手机,新闻随时看
扫一扫,用手机看文章
更加方便分享给朋友
【俊屹中心】售楼部电话:028 - 62444811(已认证)
【俊屹中心】销售经理电话:15388440405(微信同号)
温馨提示:为了提供更高更好的接待服务质量,看房请提前1小时致电预约!
成都俊屹中心:城市中心的品质生活新地标
在繁华的成都市中心,耸立着一座集商业、办公、居住于一体的综合性地标——成都俊屹中心。凭借独特的地理位置、完善的配套设施和高品质的生活环境,吸引了众多投资者的关注,成为成都楼市中的一颗璀璨明珠。
【项目基本参数】
公寓参数:
总体量:7.4万方
建筑面积:14.22万方
产权性质:商办
占地:25亩
在售楼栋:2#2单元
物业公司:四川景佑物业
物业费用:4.5元/㎡
停车位:机动车位798个,非机动车位996个
2号楼:
面积:37--67㎡
总层高:35层
在售楼层:24楼
层高:3.2米
装修:清水交付
梯户比:5T20户
公摊:34%
交房:2024年4月30日交房
均价:11000-12000元/㎡
是否通气:不通气,带烟道
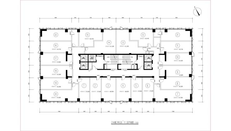
公寓楼层平面图:
2号楼:
投资价值凸显,未来可期
作为成都市中心的综合性地标建筑,俊屹中心不仅具备优越的地理位置和完善的配套设施,还拥有巨大的投资潜力。随着周边商业氛围的不断浓厚和知名企业的入驻,项目的商业价值将进一步提升。此外,项目周边还规划有多个文创项目和高端酒店集群,未来将成为成都新的文化创意产业高地和商务休闲中心。
【俊屹中心】售楼部电话:028 - 62444811(已认证)
【俊屹中心】销售经理电话:15388440405(微信同号)
温馨提示:为了提供更高更好的接待服务质量,看房请提前1小时致电预约!
声明:本文由入驻焦点开放平台的作者撰写,除焦点官方账号外,观点仅代表作者本人,不代表焦点立场。


