成都华兴滨江锦宸售楼部电话丨楼盘位置丨在售面积丨年末特惠丨12月房价走势
扫描到手机,新闻随时看
扫一扫,用手机看文章
更加方便分享给朋友
【滨江锦宸】售楼部电话:028 - 62444811(已认证)
【滨江锦宸】销售经理电话:15388440405(微信同号)
温馨提示:为了提供更高更好的接待服务质量,看房请提前1小时致电预约!
大源低密南区 · 江安河畔 · 现房墅区
项目核心价值:
【实力品牌】深耕本土人居26载,用心服务每位业主
【坐享繁华】2km大源核心区,尽享城南繁华生活配套
【一线滨江】江安河畔滨水墅居,揽城市稀缺景观资源
【便捷出行】项目近地铁5号线,三横三纵路网立体交通
【主城现房】成都主城区臻罕现房低密滨江墅区
楼盘信息:
【项目占地】:约86亩
【容积率】:1.5
【绿化率】:30%绿地率
【梯户比】:高层2T2
【面积段】:
建面约174-325㎡江岸雅奢墅境
建面约129-159㎡天际阔景平层
【安心置业】:现房销售
【项目亮点】
崇奢府门,彰显层峯不凡气派
项目斥资千万匠造社区大门,
高度约13M,宽度约39M,
整个大门采用不锈钢曲线工艺设计,
石材柱体,屋顶香槟金全铝板挑檐,
大气煊赫,气象卓然。
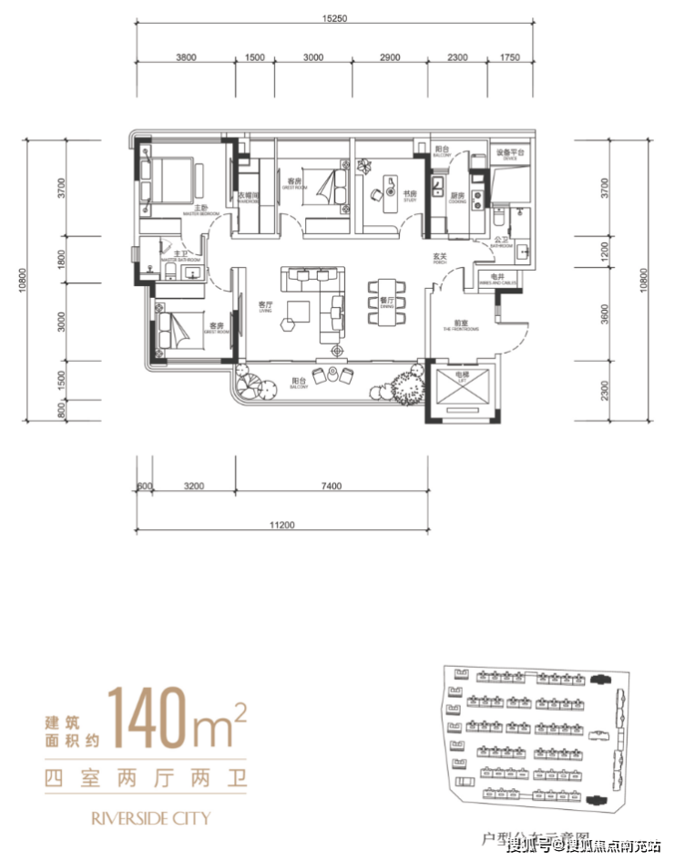
【户型图品鉴】
建面约129-159㎡天际阔景平层



建面约174-325㎡江岸雅奢墅境
【滨江锦宸】售楼部电话:028 - 62444811(已认证)
【滨江锦宸】销售经理电话:15388440405(微信同号)
温馨提示:为了提供更高更好的接待服务质量,看房请提前1小时致电预约!
声明:本文由入驻焦点开放平台的作者撰写,除焦点官方账号外,观点仅代表作者本人,不代表焦点立场。


